يبدأ من
$15.00
يبدأ من
$15.00
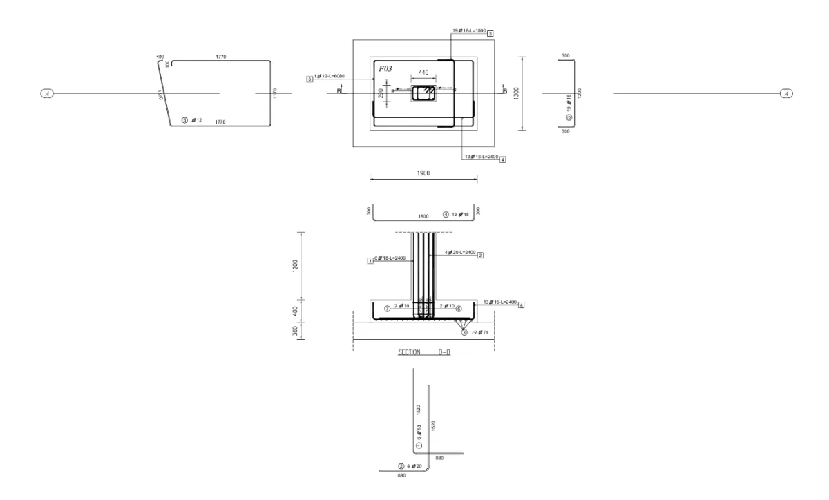
تصميم لوحات شوب دروينج تسليح حديد للعناصر الانشائيه باستخدام برنامج الASD
التقييم
( 0 تقييمات )
الخيارات
تفاصيل التسليح للمنشات الخرسانيه مع عمل جداول لحصر كميات الحديد بالتفصيل وبيانات القطعيات باستخدام برنامج ال ASD
لا يوجد معطيات حاليا
خدمات مشابهة
ربما تعجبك الخدمات التالية
أضف إلى المفضلة
يبدأ من
$50.00
تصميم لوحات شوب دروينج و 3D مودل و تسليح حديد للعناصر الانشائيه باستخدام برنامج الREVIT
التقييم
( 0 )
أضف إلى المفضلة
يبدأ من
$20.00
أضف إلى المفضلة
يبدأ من
$10.00
أضف إلى المفضلة
يبدأ من
$250.00